Home
Rehabite
ITE
Regeneración urbana
Rehabilitación
Rehabilitación patrimonio catalogado
Rehabilitación integral
Rehabilitación fachadas
Rehabilitación estructuras
Accesibilidad
Obra nueva
Residencial colectiva
Residencias unifamiliares
Asistencial
Cultural
Equipamientos
Concursos
Interiorismo
Interiorismo equipamiento
Interiorismo viviendas
Contacto
Es
Eusk
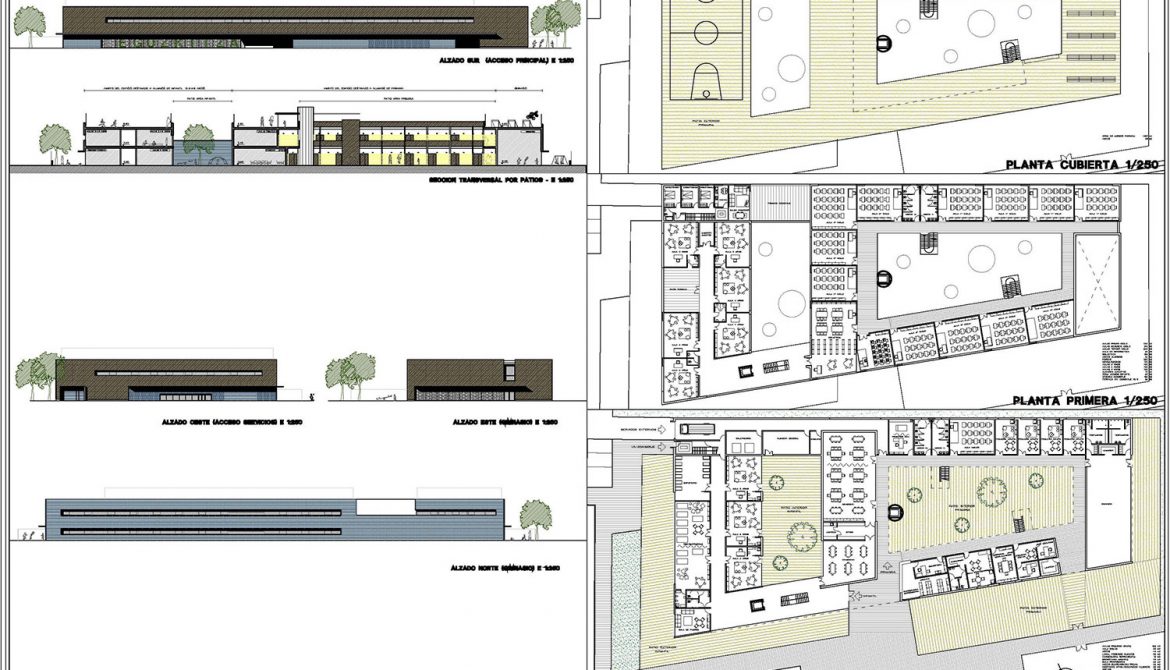
COLEGIO EGUZKITZA
COLEGIO EGUZKITZA
Año: 2006
Emplazamiento: Irun
Promotor: Eusko Jaurlaritza